2015年一级注册建造师建筑工程预习题卷二(5)
(四)
背景资料:
某公共建筑工程,建筑面积82000m2,地下三层,地上二十层,层高3.8m,钢筋混凝土框架结构。大堂一至三层中空,大堂顶板为钢筋混凝土井字梁结构,某施工总承包单位承担施工任务。
在工程施工过程中,发生了如下事件:
事件一:开工前,地方建设行政主管部门检查项目施工人员三级教育情况,质询项目经理部的教育内容。施工项目负责人回答:“进行了国家和地方安全生产方针、企业安全规章制度、工地安全制度、工程可能存在的不安全因素四项内容的教育”。受到了地方建设行政主管部门的严厉批评。
事件二:施工总承包单位进场后,采购了Ⅱ级钢筋110t,钢筋出厂合格证明资料齐全。施工总承包单位将同一炉罐号的钢筋组批,在监理工程师见证下,取样复试。复试合格后,施工总承包单位在现场采用冷拉方法调直钢筋,冷拉率控制为3%,监理工程师责令施工总承包单位停止钢筋加工工作。
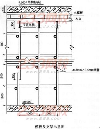
事件三:施工总承包单位根据《建筑施工模板安全技术规范》,编制了《大堂顶板模板工程施工方案》,并绘制了模板及支架示意图,如下所示。监理工程师审查后要求重新绘制。
事件四:拆模后发现梁底的外露面出现麻面、露筋等表面缺陷。监理要求分析原因并提出后续工程的防治措施。
问题:
1.事件一中,指出不属于项目经理部教育的内容,项目经理部教育还应包括哪些内容?
2.指出事件二中施工总承包单位做法的不妥之处,分别写出正确做法。
3.指出事件三中模板及支架示意图中不妥之处相对应的正确做法(至少列出五项)。
4.分析事件四中混凝土表面质量缺陷产生的可能原因(至少列出五项)。
(五)
背景资料:
某公司承建某大学办公科研综合楼项目,在装饰装修阶段,大学城建设单位追加新建校史展览馆,紧临在建办公科研综合楼。总建筑面积2160m2,总造价408万元,工期10个月。屋面设女儿墙,屋面防水材料采用SBS卷材。
考虑到工程较小、某公司也具备相应资质,建设单位经当地建设相关主管部门批准后,未通过招投标直接委托给该公司承建。
展览馆项目设计图纸已齐全,结构造型简单,且施工单位熟悉周边环境及现场条件,甲乙双方协商采用固定总价计价模式签订施工承包合同。
施工过程中发生如下事件:
事件一:考虑到展览馆项目紧临办公科研综合楼,用电负荷较小,且施工组织仅需6台临时用电设备,某公司依据《施工组织设计》编制了《安全用电和电气防火措施》,决定不单独设置总配电箱,直接从综合楼项目总配电箱引出分配电箱。施工现场临时用电设备直接从分配电箱连接供电。项目经理安排了一名有经验的机械工进行用电管理。监理工程师认为不妥,指令整改。
事件二:屋面淋水试验时,发现女儿墙根部漏水,经查,主要原因是转角处卷材开裂,施工总承包单位进行了整改。
事件三:展览馆各阶段验收合格,施工单位于2013年9月18日提交工程验收报告,建设单位于当天投入使用。建设单位以工程质量问题需在使用中才能发现为由,将工程竣工验收时间推迟到11月18日,与综合楼一并进行验收,并要求《工程质量保修书》中竣工日期以11月18日为准。施工单位对竣工日期提出异议。
问题:
1.大学城建设单位将展览馆项目直接委托给某公司是否合法?说明理由。
[1] [2] 
考试交流区成绩查询交流群(点击加入QQ群可快速加群交流成绩查询相关信息我们会及时在群里通知):
温馨提示:有任何报考及考试相关疑问,可添加网校专业老师个人微信号“edu24olxu”咨询。!考生可下载手机APP,随时掌握考试资讯!

扫一扫上面的二维码,添加老师个人微信号,所有课程七折开通
相关推荐:相关文章
如果本站所转载内容不慎侵犯了您的权益,请与我们联系
,我们将会及时处理。如转载本站内容,请注明来源:一级建造师考试网(www.jzsedu.org)。





